Negozio in affitto

Napoli, Via Giacomo Leopardi - Fuorigrotta Leopardi
Informazioni in agenzia
2 locali 2 locali
600 Mq 600 Mq
4 bagni 4 bagni

Negozio in affitto

Napoli, Via Giacomo Leopardi - Fuorigrotta Leopardi

Descrizione annuncio

FUORIGROTTA

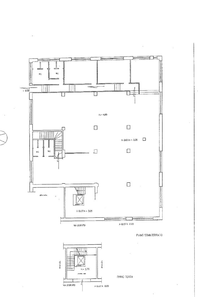
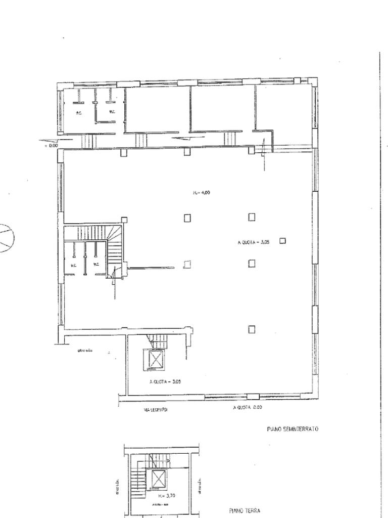
Proponiamo in affitto locale commerciale di 600mq con vetrine su strada, disposto su due livelli, il livello sottostante è di categoria di C1. La soluzione è ubicata su Via Giacomo Leopardi, zona ad alto passaggio pedonale e vicolare, a pochi metri dalla tangenziale e vicino allo stadio Diego Armando Maradona.

Per ulteriori informazioni o per fissare un appuntamento chiamare in agenzia allo 081.335.3361 oppure al 375.585.6884 , validi anche su whatsapp.

Per restare sempre aggiornato sul mercato immobiliare seguici su Facebook,Instagram o Tik Tok : Tecnorete Impresa Fuorigrotta.

Ogni agenzia ha un proprio titolare ed è autonoma. Le presenti informazioni non costituiscono elemento contrattuale

Mostra tutto

Nelle vicinanze

Trasporto pubblico Trasporto pubblico
Mostra
Mostra
710 m
Augusto
Augusto
720 m
Fuorigrotta
Fuorigrotta
830 m
Napoli Piazza Leopardi
Napoli Piazza Leopardi
970 m
Leopardi - D'Annunzio
Leopardi - D'Annunzio
60 m
Scuole Scuole
52° CD
260 m
Università "Federico II" - Complesso di via Claudio
300 m
SMC La Loggetta
410 m
78° CD A.Lala
430 m
Asilo Nido "V.Ciaravolo"
450 m
Farmacia Farmacia
Farmacia San Paolo
310 m
Parafarmacia Conad
610 m
Farmacia
1,6 Km
Arena
1,8 Km
Farmacia
2,1 Km
Ospedali Ospedali
ASL NA1 - Poliambulatorio
480 m
Clinic Center
810 m
Ospedale San Paolo
980 m
ASL NA 1 - Poliambulatorio
1,2 Km
Ospedale Fatebenefratelli
1,8 Km
Supermercati Supermercati
MD Loggetta
540 m
Conad
610 m
Sunrise
620 m
Carrefour Market
660 m
Supermercato Decò
760 m
Negozi Negozi
Saverio
950 m
Zoe
950 m
Tris
960 m
Lello
980 m
Yamamay
990 m
Bar Bar
Bar
710 m
Gran Caffè Cimmino
1,9 Km
Miranapoli
2,1 Km
Vintage
2,3 Km
Enoteca Sermoneta
2,3 Km
Ristoranti Ristoranti
La Facoltà
960 m
Pizzeria di Napoli
1,0 Km
Mensa Universitaria
1,1 Km
Pizzaria Luna Rossa
1,2 Km
Trattoria da Vittorio
1,2 Km
Mostra tutto

Caratteristiche

Rif.:
61180651
Piano:
Terra con ascensore
Condizionamento:
Autonomo
Ascensore:
Riscaldamento:
Autonomo
Libero:
Mostra tutto
Prezzo Prezzo
Informazioni in agenzia
Spese annue Spese annue
€ 1

Classe Energetica

G
G
G
G
G
G
G
G
G
Anno di costruzione:
1967
Riscaldamento:
Autonomo
Tipo impianto:
Ad aria
Tipo alimentazione:
Aria

Ti interessa visionare l'immobile?

Fissa un appuntamento  Fissa un appuntamento

Richiedi informazioni

Clicca su Leggi per aprire l'informativa
* Questi campi sono obbligatori
Affiliato
Amma Impresa Srl
Via Giacomo Leopardi, 207 80125 Napoli (NA)

Il nostro staff


  • Enza D'Angelo
    Responsabile
Via Giacomo Leopardi, 207 80125 Napoli (NA)
Zona: Fuorigrotta-Pianura-Soccavo-Bagnoli
Mostra su mappa
Orari: dal lunedi al venerdi dalle ore 9.00 alle ore 20.00 , sabato dalle ore 9.00 alle ore 14.00
Affiliato
Amma Impresa Srl
Via Giacomo Leopardi, 207 80125 Napoli (NA)

2026 Tecnocasa Franchising S.p.A. - P. IVA 08365160152 - Via Monte Bianco 60/A 20089 Rozzano (MI). Ogni agenzia ha un proprio titolare ed è autonoma. Privacy policy | Policy utilizzo | Cookie policy